Incluimos el informe topográfico, el proyecto básico, el proyecto de ejecución para la obtención de licencia, la ejecución de la cimentación siempre que el terreno permita losa corrida, la dirección de obra, la dirección de ejecución con la coordinación y control de Seguridad y Salud, la gestión y entrega de los boletines necesarios para las acometidas de luz y agua, así como toda la documentación final de obra.
[ VIVIENDA DE 100 M2 ]
Construcción en una o dos plantas
Opciones de 1, 2 y 3 dormitorios
Construcción a precio cerrado, incluyendo trabajos administrativos para que no te preocupes de nada. Controla al 100% tu inversión.
[ TU NUEVO HOGAR EN 100 M2]
Planos de distribución
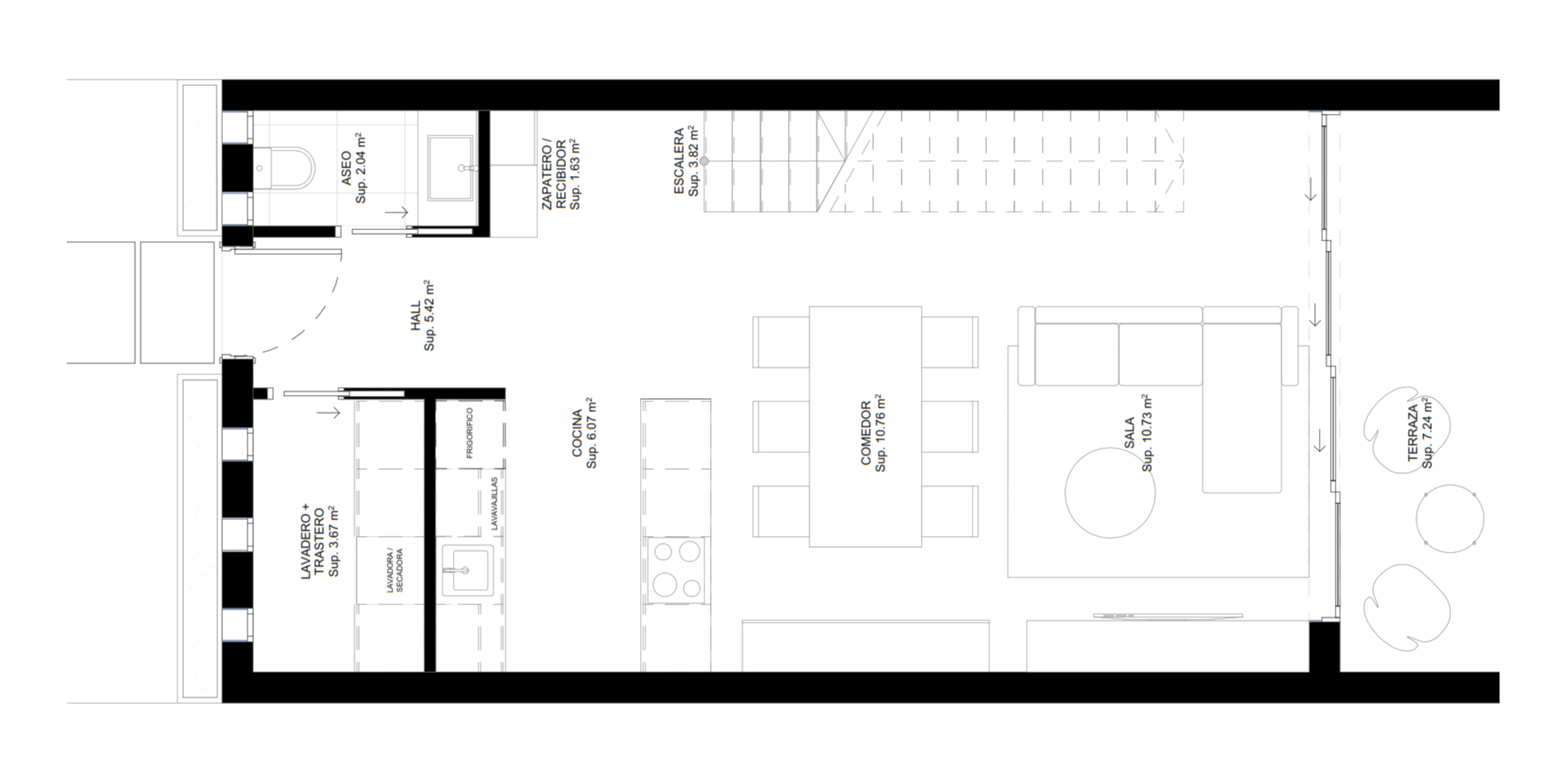
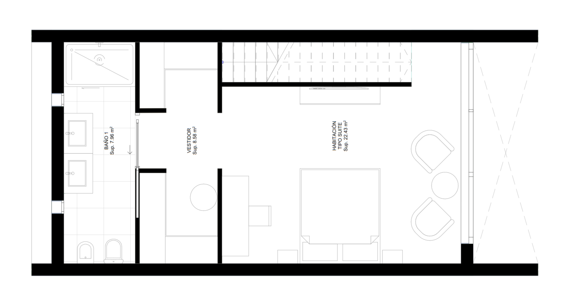
- 2 PLANTAS - 1 DORMITORIO


[ TU NUEVO HOGAR EN 100 M2]
Añade tu porche, piscina, garaje...
Podemos construir, a medida, todo lo que necesites.
[ QUÉ INCLUYE]
Qué está incluido en este presupuesto
[ TU HOGAR DE 100 M2 ]
Memoria de calidades
La vivienda se construye con un sistema industrializado de entramado ligero de madera, empleando materiales certificados y sostenibles que garantizan precisión, eficiencia energética y confort.
La cimentación se ejecuta según estudio geotécnico y la envolvente combina estructura de madera, aislamiento térmico-acústico de altas prestaciones y un sistema SATE para máxima eficiencia.
Los interiores incluyen tabiques de madera con yeso laminado, carpintería exterior de aluminio con doble acristalamiento, puertas interiores de suelo a techo y acabados de calidad como pavimentos porcelánicos o parquet natural, pintura lisa y escaleras en madera o metal.
La instalación eléctrica, fontanería y telecomunicaciones está completamente integrada.
Los baños y la cocina incorporan mobiliario y griferías de primeras marcas, con platos de ducha extraplanos, mamparas de vidrio y encimeras de cuarzo.
Todo el conjunto ofrece un hogar moderno, eficiente, duradero y diseñado con materiales de alta calidad.
TU HOGAR DE 100 M2
Pide más información
Completa el formulario y nos pondremos en contacto contigo en breve.
